Pending Continue to Show

Listing Tools

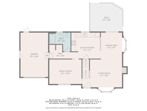
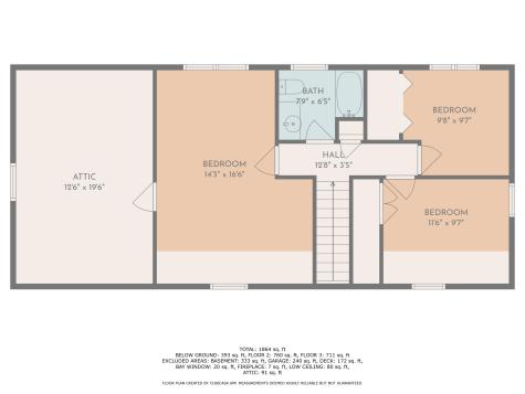
This Bayside-built Cape has been lovingly maintained by the same family for 26 years. Sitting on a picturesque cul de sac in inviting Hunter Hill Estates, this house has a nice back yard for gardening, playing or relaxing on the large deck with a retractable awning. The first floor has a fire-placed living room which opens up to a dining area with sliders to the deck; a den, kitchen, full bathroom, and access to the garage. The second level has three bedrooms - the primary bedroom has unfinished walk-in space over the garage (many have turned this into a luxurious walk-in closet or private bathroom). The house is heated by forced hot water by natural gas and has Town water.

Property Details of 40 Appaloosa Way

Map Location

Driving Directions

Listed by Beth Talerman of Murphy Real Estate

broker reciprocity The data relating to real estate for sale on this site comes from the Broker Reciprocity (BR) of the Cape Cod & Islands Multiple Listing Service, Inc. Summary or thumbnail real estate listings held by brokerage firms other than Davenport Realty are marked with the BR Logo and detailed information about them includes the name of the listing broker. Neither the listing broker nor Davenport Realty shall be responsible for any typographical errors, misinformation, or misprints and shall be held totally harmless.

This site was last updated November 12, 2025 11:21 PM EST. All properties are subject to prior sale, changes, or withdrawal.

Davenport Realty has chosen to display only certain towns and/or types or styles of properties. This site may not show all listings that are available through the Cape Cod & Islands Multiple Listing Service, Inc.

Hi there! How can we help you?

Contact us using the form below or give us a call.

Send Us A Message:

I agree to receive marketing and customer service calls and text messages from Davenport Realty. To opt out, you can reply 'stop' at any time or click the unsubscribe link in the emails. Consent is not a condition of purchase. Msg/data rates may apply. Msg frequency varies. Privacy Policy.

Do not fill in this field:

This site is protected by reCAPTCHA and the Google Privacy Policy and Terms of Service apply.

Hi there! How can we help you?

Contact us using the form below or give us a call.

Send Us A Message:

Do not fill in this field:

This site is protected by reCAPTCHA and the Google Privacy Policy and Terms of Service apply.

Hi there! How can we help you?

Contact us using the form below or give us a call.

Send Us A Message:

Do not fill in this field:

This site is protected by reCAPTCHA and the Google Privacy Policy and Terms of Service apply.

Do not fill in this field:

This site is protected by reCAPTCHA and the Google Privacy Policy and Terms of Service apply.

Do not fill in this field:

This site is protected by reCAPTCHA and the Google Privacy Policy and Terms of Service apply.

Do not fill in this field:

This site is protected by reCAPTCHA and the Google Privacy Policy and Terms of Service apply.

$

Do not fill in this field:

This site is protected by reCAPTCHA and the Google Privacy Policy and Terms of Service apply.